

●自動ゲート・手動ゲートの2種類から用途に合わせて選べます。
リモコン使用も可能です。
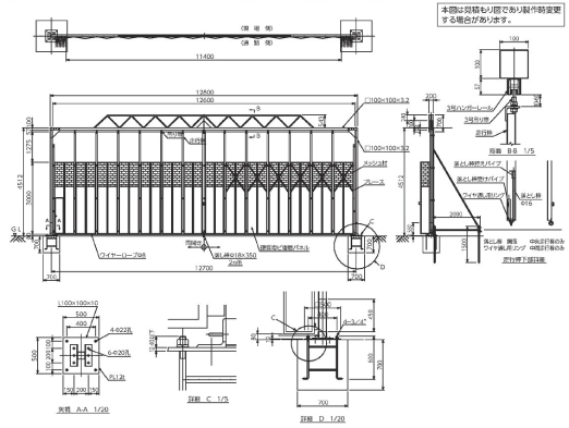
●ゲートの柱・梁に使用している角柱の鋼板厚は3.2mm(他社品は2.3mm)で
曲がったり折れたりしません。

| 型番 | スパン | 幅(W) 柱芯芯(mm) |
有効間口 (mm) |
高さ(H) (mm) |
重量 (kg) |
呼称 |
| APG(N)-36 | 4 | 3,700 | 3,120 | 4,500 | 380 | 基 |
| APG(N)-45 | 6 | 4,600 | 3,960 | 4,500 | 420 | 基 |
| APG(N)-54 | 6 | 5,500 | 4,790 | 4,500 | 460 | 基 |
| APG(N)-63 | 8 | 6,400 | 5,620 | 4,500 | 520 | 基 |
| APG(N)-72 | 8 | 7,300 | 6,450 | 4,500 | 570 | 基 |
| APG(N)-81 | 10 | 8,200 | 7,160 | 4,500 | 610 | 基 |
| APG(N)-90 | 10 | 9,100 | 7,940 | 4,500 | 650 | 基 |
| APG(N)-99 | 12 | 10,000 | 8,450 | 4,500 | 700 | 基 |
| APG(N)-108 | 12 | 1,0900 | 9,280 | 4,500 | 750 | 基 |
| APG(N)-117 | 14 | 11,800 | 10,100 | 4,500 | 800 | 基 |
| APG(N)-126 | 14 | 12.700 | 10,700 | 4,500 | 840 | 基 |
| APG(N)-135 | 16 | 13,600 | 11,460 | 4,500 | 880 | 基 |
| APG(N)-144 | 16 | 14,500 | 12,110 | 4,500 | 920 | 基 |
| APG(N)-153 | 18 | 15,400 | 12,840 | 4,500 | 960 | 基 |
・700mm角以上の基礎ブロックの場合には、現場様にて増し打ちが必要となります。
・パネルには全面塩ビパネルと上部メッシュ(Nタイプ)の種類があります。ご確認の上、ご注文願います。
・ご返却の際は骨組みとパネルを外し結束してお返しください。半解体費がかかります。
・基礎ブロックを使用した基礎施工工事も承ります。その際は土間がコンクリ、アスファルトの場合には
事前にハツリをお願い致します。
・販売の場合は手動式となります。
・設置後、転倒防止のため必ず控えを取ってください。
・台風、暴風時にはパネルを開口し、束ねて応急対策をしてください。
Copyright © 南都産業株式会社
