

●ノーアンカーで簡単に設置、柱にW単管使用


[建方要項]
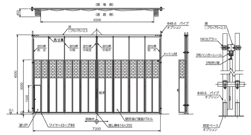
1.梁(63型以上中央ジョイント)を柱(48.6φ単管パイプ)にNKカプラー(単×4ヶ)にてセットする。
2.走行棒を(両開き、片開きにより中央部位置注意)梁にセットする。
3.走行棒取付後パネルをセットする。(パネル止めピンを差込む)
4.パネル(潜戸付)は正面から見て中央(右側)か左側端板に取付けて下さい。
5.全てセット後、下部に揺れ止めワイヤーロープを通す。
※設置後、転倒防止のため必ず控えを取って下さい。
※台風、暴風時にはパネルを開口し、束ねて応急対策をして下さい。
・パネルには全面塩ビパネルと上部メッシュ(Nタイプ)の種類があります。
ご確認の上、ご注文願います。
・ご返却の際は骨組みとパネルを外し結束してお返しください。半解体費がかかります。
・柱用単管パイプなどは、あらかじめ現場様で手配をお願いします。
・ブレスは標準ではついておりません。(オプション扱い)
・走行棒は丸パイプ仕様とC型鋼仕様がございます。(写真はC型鋼仕様です)
Copyright © 南都産業株式会社
