
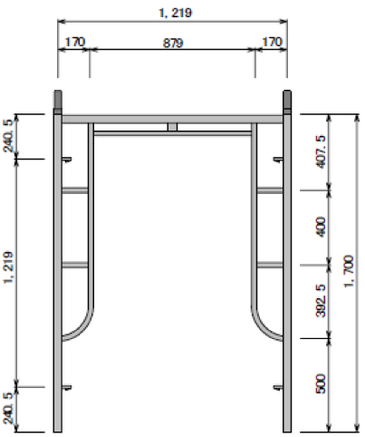
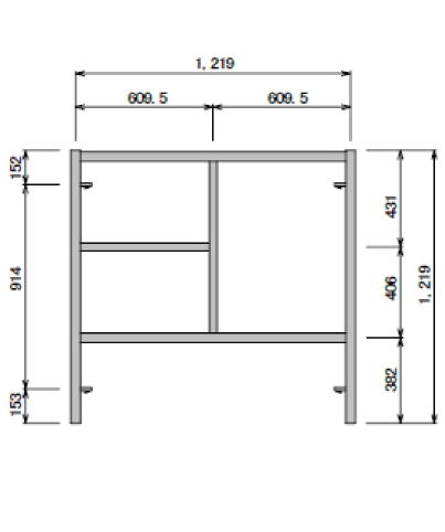
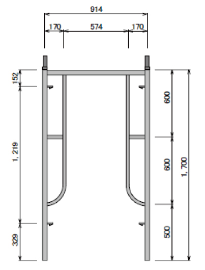
枠組み足場
- ホーム
- 取扱製品
- 外部足場・シート製品
- 枠組み足場

許容重量・・・5,000kg
製品重量・・・16.7kg

| 筋交 | スパン | 筋交 | スパン |
| A-14 | 1,829 | A-012 | 914 |
| A-11 | 1,524 | A-12 | 610 |
| A-13 | 1,219 |
許容重量・・・5,000kg
製品重量・・・14kg

| 筋交 | スパン | 筋交 | スパン |
| A-19 | 1,829 | A-19S | 914 |
| A-18 | 1,524 | A-09 | 610 |
| A-012 | 1,219 |
許容重量・・・5,000kg
製品重量・・・13.6kg

| 筋交 | スパン | 筋交 | スパン |
| A-14 | 1,829 | A-012 | 914 |
| A-11 | 1,524 | A-12 | 610 |
| A-13 | 1,219 |
許容重量・・・5,000kg
製品重量・・・9.5kg

| 筋交 | スパン | 筋交 | スパン |
| A-19 | 1,829 | A-19S | 914 |
| A-18 | 1,524 | A-09 | 610 |
| A-012 | 1,219 |
許容重量・・・3,500kg
製品重量・・・12.3kg

| 筋交 | スパン | 筋交 | スパン |
| A-14 | 1,829 | A-012 | 914 |
| A-11 | 1,524 | A-12 | 610 |
| A-13 | 1,219 |
許容重量・・・3,500kg
製品重量・・・11.7kg

| 筋交 | スパン | 筋交 | スパン |
| A-14 | 1,829 | A-012 | 914 |
| A-11 | 1,524 | A-12 | 610 |
| A-13 | 1,219 |
Copyright © 南都産業株式会社
